Все товары  /  Профоборудование  /  Холодильное  /  Двери холодильные

Дверь откатная для холодильной камеры ПРОФХОЛОД ОД ПХ 2600 3600 100 (2600x3600 мм, панель 100 мм)

Код товара: 362688
10 309.37 BYN
Статус: Под заказ
Гарантия: 12 мес.
Основные характеристики
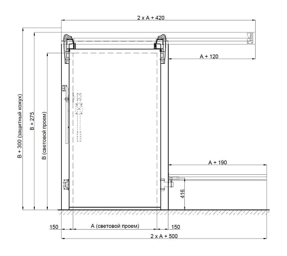
Тип откатная
Назначение для холодильных складов и камер
Ширина светового проема 2600 мм
Толщина 100 мм
Высота светового проема 3600 мм
Страна-производитель Россия
Родина бренда Россия
Описание

Откатная дверь ПРОФХОЛОД ОД ПХ 2600 3600 100 применяется для ограждения и теплоизоляции дверных проемов средне- и низкотемпературных камер любого объема, холодильных складов, терминалов и помещений с монорельсом. Модель устанавливается в местах прохода людей, провоза ручных тележек с грузом, механизированных погрузчиков и для стабилизации климатического режима в помещениях. Дверное полотно выполнено из оцинкованного стального листа с полиэфирной краской, рама - из листовой холоднокатаной стали с порошковой эмалевой краской, направляющие профили - из анодированного алюминия, уплотнители по периметру двери - из пористой резины EPDM с нанесенным слоем липкого армированного клея, защищенного протекторной бумагой, ролики - из пластика, ручки - целиком из оцинкованной стали с покрытием порошковой краской, теплоизоляционный наполнитель - из жесткого пенополиуретана.

Особенности:

  • Исполнение для среднетемпературных или морозильных камер по запросу
  • Исполнение с легкой или тяжелой ручкой
  • Откат влево/откат вправо
  • Установка в помещениях с отсутствием требований к гигиене
  • Усиленная фурнитура собственного производства
  • Увеличенный в 1,5 раза срок службы фурнитуры за счет модернизации элементов
  • Герметизация по периметру
  • Эксплуатация в отапливаемых и неотапливаемых помещениях, под навесом на открытом воздухе, в климатических регионах УХЛ, категории размещения 2 и 3
  • Увеличенная длина толкателя для выталкивания двери из посадочного желоба без дополнительных физических усилий
  • Верхние кронштейны позволяют регулировать ход двери
  • Нижние кронштейны рассчитаны на активную эксплуатацию ролика при открытии и закрытии двери
  • Комплект упора с захватом обеспечивает надежную фиксацию за счет волнообразного изгиба, а подвижный ролик из маслонаполненного полиамида внутри захвата защищает конструкцию от истирания

Дополнительные характеристики:

  • Толщина стали:
    • Дверное полотно: 0,5 мм
    • Рама: 2 мм
    • Нижний кронштейн: 8 мм
  • Наполнитель:
    • Плотность: до 50 кг/м³
    • Теплопроводность: 0,022 Вт/(м·К)
  • Условия эксплуатации:
    • Температура окружающей среды: от -45 °С до +55 °С
    • Влажность: до 80%
  • Максимальная нагрузка на направляющие: 200 кг
  • Цвет: белый

Опции (заказываются отдельно):

  • Альтернативное цветовое исполнение
  • Покрытие PVDF, PU, Food safe, оцинкованная сталь с полиэфирным покрытием RAL, оцинкованная сталь без полиэфирного покрытия, нержавеющая сталь AISI 304 или AISI 430
  • Электропривод Dervet (Италия) или ПрофХолод (Россия) для автоматизации открытия/закрытия
  • Пандус приставной
  • Пандус стационарный
  • Утепленный порог RAL или нержавеющий
  • Замок Fermod или Rahrbach
  • Смотровое окно
  • Проем под монорельс
  • Отбойники на полотно двери
  • Картонная упаковка
  • Деревянная обрешетка
  • Исполнение нестандартных размеров

Внимание! На фото аналогичная модель другого размера.

Информация о товарах, размещенная на сайте, не является публичной офертой, определяемой положениями ст. 405 Гражданского кодекса Республики Беларусь. Производители вправе вносить изменения в технические характеристики, внешний вид и комплектацию товаров без предварительного уведомления. Уточняйте характеристики у наших менеджеров перед оформлением заказа
Анастасия, отдел качества
Анастасия
Отдел качества
Звоните в будни с 9:00 до 18:00